EXTERIOR
FLOOR PLANS
Details
Crawlspace Foundation
Basement Foundation
Walkout Basement Foundation
What’s Included in these plans?
Cover sheet typically includes a front view of the plan (may be in color), index of pages included, and other miscellaneous notes and details.
Foundation plans describe to the builder, the type of foundation requested by the home owner or the type of foundation required by a certain geographic area. In most cases, the foundation plan will include footing sizes and locations, footing details and other important information needed to properly construct the home. In some specific areas, a structural engineer may be required to review and certify the house plans purchased. These reasons include, but are not limited to the following: seismic (earthquake) considerations, high wind (coastal , mountainous areas, etc.), snow loads, etc.
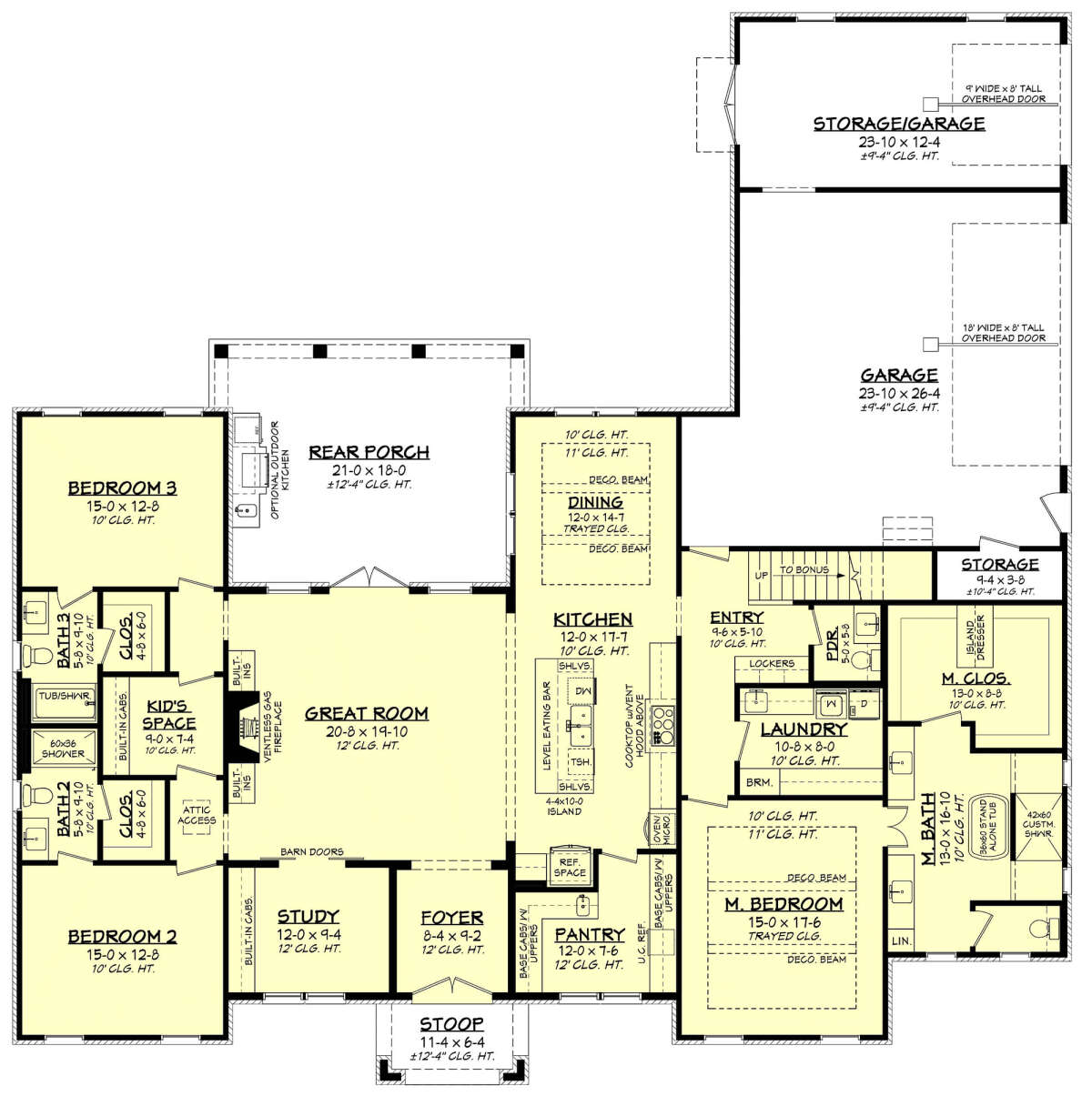
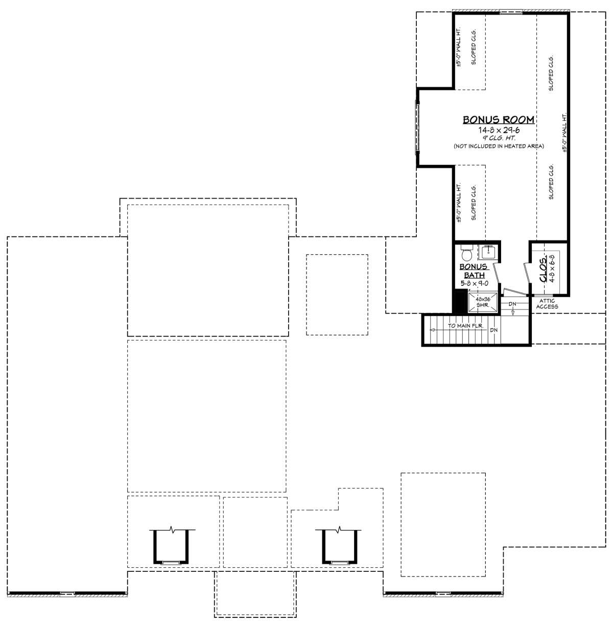
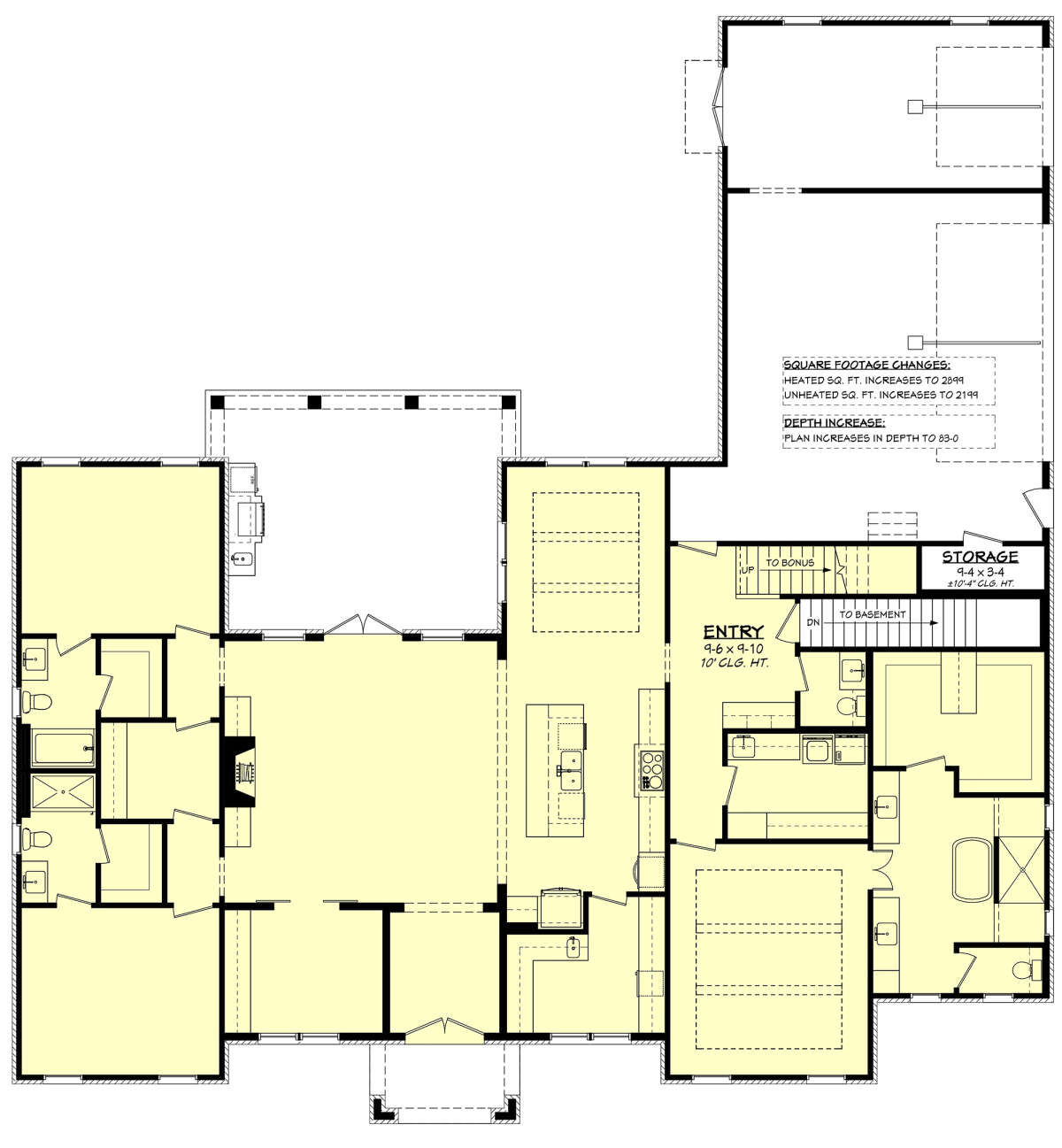
The floor plans locate all walls, interior and exterior, of the entire building, denote ceiling heights and treatments, locate all plumbing fixtures, cabinets, door and window locations and sizes, gives square footage measurements, locate water heaters and HVAC systems.
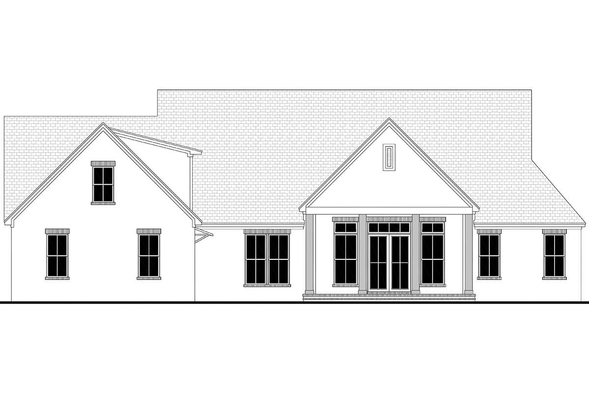
The exterior elevations are used to depict the exterior finishes (brick, siding, stucco, etc.), roof styles (hip or gable) and slopes, ridge heights, and window styles, and overhang lengths. The exterior elevations include a front, right, rear, and left elevation.
The building sections describe to the builder how a particular home is to be constructed. Building sections typically show stud heights, the roof construction, whether stick built or engineered, direction of the ceiling joist members, overhang finishes, wall and ceiling finishes, and interior roof support members.
The roof plan depicts the roof type, plate heights and roof slope of each plane.
Cabinet views depict the overall design and layout of the kitchen cabinets.
The electrical plan depicts the general location of all interior and exterior electrical devices. This generally includes light switches, electrical outlets, ceiling fixtures, and smoke detectors. The electrical plan will also generally locate the breaker box and power entry.
